Вместимость квартиры макс. 8 человек
(спальня = двуспальная кровать + односпальная кровать; проходная мансарда = двуспальная кровать и дополнительная кровать, диван; гостиная = дополнительная кровать диван)






Вместимость квартиры макс. 8 человек
(спальня = двуспальная кровать + односпальная кровать; проходная мансарда = двуспальная кровать и дополнительная кровать, диван; гостиная = дополнительная кровать диван)
Найти квартиру №7 относительно просто, так как вход в дом по улице A. Kmeťa 16 находится прямо у подножия «тротуара» (надземной пешеходной зоны). За большой деревянной дверью длинный коридор ведет к большой лестнице. Все, что Вам нужно сделать, это подняться на самый верх и сразу за стеклянным коридором повернуть направо. Средняя дверь с деревянным номером No.7 именно та, которая Вам нужна. ДОБРО ПОЖАЛОВАТЬ :)
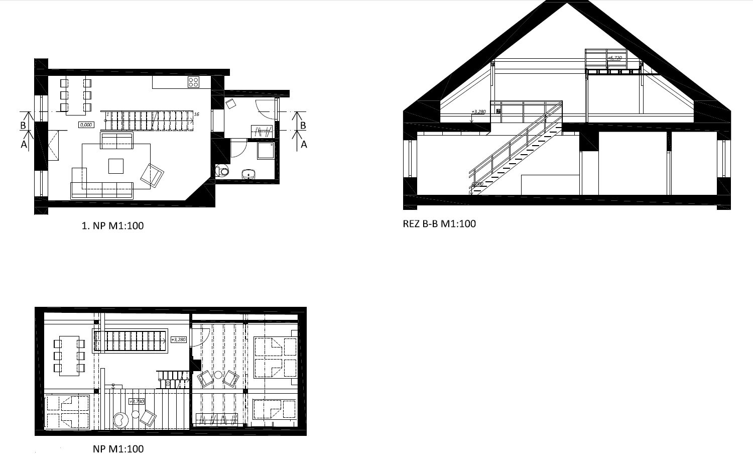
Квартира начинается с прихожей с вешалкой и галошницей. Первая дверь слева ведет в ванную комнату и туалет. Если Вы пройдете прямо в гостиную, соединенную с кухней, то окажетесь в просторном помещении с камином, диваном, который также служит дополнительной кроватью. Помещение также оборудовано кухней, большим обеденным столом и всем необходимым для приятного отдыха. Да, у нас также есть ТВ и WiFi :). По лестнице Вы подниметесь на мансарду, где находится спальня с кроватями (2 + 1) и просторная гостиная зона, в которой, помимо еще одной двуспальной кровати, есть еще один диван и одна игровая зона с матрасом.
Таким образом, для сна предусмотрены отдельная спальня (2 + 1), проходная мансарда (двуспальная кровать) и дополнительная кровать, а в гостиной - диван. Найдутся еще два больших матраса, но это уже нарушит комфорт. Бонус - платформа над спальней с потолочным окном и большим матрасом для маленьких и больших искателей приключений...
Прихожая – вешалка с галошницей, Ванная совмещенная с туалетом - полотенца, банные полотенца, а также фен и выпрямитель для волос - само собой разумеется.
Гостиная и кухня – кухонный гарнитур (индукционная плита, микроволновая печь, тостер и все необходимое для 8 искателей приключений), холодильник, стол длиной 2 м и 8 стульев, диван-кровать, камин, телевизор, мини-система HiFi, DVD-DivX плеер, настольный футбол, кресло-качалка. Спальня с двухспальной и одной односпальной кроватями. Комод и вешалки для вещей, утюг и гладильная доска.
В общей зоне есть небольшая площадка с большим матрасом для отдыха и сна, рядом - еще одна двуспальная кровать, а в углу игровая зона с диваном, столом и множеством настольных игр. Платформа над спальней и большой матрас.
Заезд после 15:00, отъезд до 10:00 (возможны изменения по взаимной договоренности, в зависимости от загруженности).
